Centro de documentación César Borgia (Viana)

Fondo digitalizado

Autor/es: Rosa María Armendáriz Aznar; María Rosario Mateo Pérez
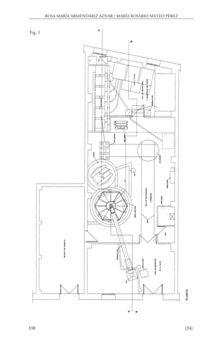
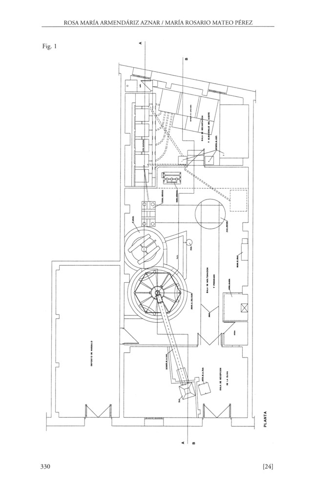
Título: El trujal "San Francisco Javier" de Oteiza de la Solana
Publicación: Cuadernos de etnología y etnografía de Navarra, nº 72 (1998), pags. 307-334

Cambiar a miniaturas

2015-10-30 11:44:33